Ghar Banane Ka Tarika A to Z
घर बनाने का तरीका A to Z
घर बनाना हर इन्सान का सपना होता है लेकिन घर बनाने का जो तरीका होता है उसको समझना बहुत जरुरी होता है आज हम इसी कार्य के बारे में बात करेंगे जो चरण बाई चरण कोनसा काम कब करना इसकी जानकारी विस्तार से करेंगे
आज भी कई लोग घर बनाने में कतराते है बजट कितना होगा मटेरियल कहाँ से लाना कई तरह के सवाल होते है घर बनाने में लेकिन में आपको आज अवगत करता हु चरण बाई चरण घर का काम करवाने का तरीका बताता हु
![]() |
घर बनाने का तरीका |
1. घर के लिए जगह लेना और उसके बारे में जानना
2. घर का प्लान बनवाना और समझना
3. घर के नीवं (शिला पूजन )
4. घर के कुर्सी लेवल की प्रक्रिया
5. घर का नीवं का काम या कोलम का करवाना
6. घर में कुर्सी लेवल के कमरों का विस्तार
7. कमरों के दरवाजा खिड़की का विवरण
8. बाथरूम के वेंट की ऊंचाई
9. छत लेवल छत की जानकारी
10. सिंगल फ्लोर है तो एलिवेशन
11. घर में लाइटिंग के पाइप
12. नल फिटिंग के पाइप
13.प्लास्टर का काम
14. फर्श का काम
15. प्लास्टर ऑफ़ पेरिस या जिप्सम का काम
16.कलर पेंट का कार्य
घर में उपयोग होने वाली हर वास्तु का सही आंकलन और सटीक जानकारी जिससे घर बनाने में आने वाली हर परेशानी का सामना करने में आप सक्षम हो और समय पर घर तैयार हो जाये
1. घर के लिए जगह लेना और उसके बारे में जानना
घर बनाने के लिए सबसे पहले जरूरत होती है हमारे पास जगह होनी चाहिए अगर जगह अपने पास है या खरीदना होता है
अगर आपके पास जगह हैऔर उस पर आप घर बनाना चाहते है तो उस जगह का कुछ परिक्षण करने की जरुरत होती है यह उन भारतीय के लिए जरुरी होती है जो सनातन धर्म में विश्वास रखते है उनके लिए जगह का परिक्षण करना जरुरी होता है आप जगह का परीक्षण करके ही घर बनाना चाहिए जगह का परीक्षण करने के बारे में जानने के लिए यहाँ क्लीक करें इस लिंक पर जाकर के आप कुछ जानकारी प्राप्त कर सकते है
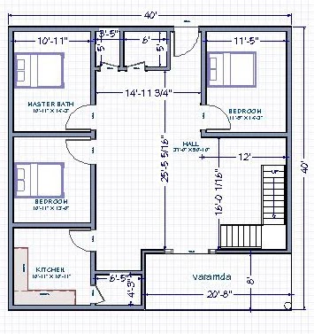
2. घर का प्लान बनवाना और समझना
घर का प्लान को इस तरह से बनवाए की आपको हर तरह से आपको व्यवस्थित महसूस हो घर में कमरे और रसोईघर सीढियाँ बाथरूम पूजा घर भारतीय सनातन धर्म वाले वास्तु के अनुसार बनवाना चाहिए
और जो सनातन धर्म नहीं मानते उनको अपने सुविधा के अनुसार बनवा सकते है लेकिन हर तरह से पूरा परिवार अगर प्लान को पसंद करता है तो फिर घर का काम आप चालू करवा सकते है
आप किसी भी प्लान को समझने के बाद भवन का निर्माण करवाना बेहतर होता है आप अगर वास्तु के अनुसार प्लान के बारे में जानना चाहते है तो यहाँ (वास्तु टिप्स घर में कहाँ किया होना चाहिए) कुछ लोग हिन्दू मान्यता को समझते है और कुछ इस तरह की बातों को अन्धविश्वास समझते है
प्लान बनाते समय यह ध्यान देना अच्छा हो सकता है सबसे ज्यादा व् शुभ पूर्वी मुखी प्लाट को माना है आप किस तरह के भवन में रहना चाहते है आप पर निर्भर करता है मन में पूर्ण विश्वाश के साथ घर बनाना लाभदायक हो सकता है
3. घर के नीवं (शिला पूजन )
घर का प्लान तैयार होने के बाद आप अपने घर का काम करवा सकते है उसके लिए आप अच्छा समय देख कर काम चालू करते है लेकिन हर भारतीय सनातनी घर का काम चालू करने से पहले जो प्लान बनाया गया है
उसके अनुसार भूमि पर निशान करके नीव की खुदाई की जाती है फिर शिला पूजन या पहला पत्त्थर शुभ मुहर्त में रखा जाता है
आजकल किसी निर्माण कार्य की शरुआत को शिलान्यास कहा जाता है इस तरह से आप यह कार्य होने के बाद में आपका घर का निर्माण कार्य शुरू होता है
घर के कुर्सी लेवल की प्रक्रिया
आप घर को बनाने में दो प्रकार से काम करवाते है पहला जो एक या दो फ्लोर का प्लान बनाने में दिवार की चुनाई में पत्थर और ईट का उपयोग होता है कुछ घरों के निर्माण में शुरुआत से ही पत्थर से चुनाई की जाती है कुछ घरों में कोलम बिम्ब से होती है
अगर घर बनाने की जगह कठोर है या पथरीली जगह पर है तो आपको नीवं की ज्यादा खुदाई नहीं होगा और उपयोग होने वाली सामग्री में भी बचाव होता है अगर जगह में मिटटी ज्यादा है तो आप को कोलम बिम्ब वाला कम ही करवाना चाहिए इस तरह से आप कुर्सी लेवल तक का काम करवा सकते है
5. घर का नीवं का काम या कोलम का करवाना
यह घर का काम नीवं के बारे में आप को यह तय करना अनिवार्य है की जगह किस तरह की है अगर कच्ची और पोकल जगह है तो आप को कोलम बिम्ब में ही करवाना चाहिए
और कठोर या पथरीली जगह है तो पत्थर से चुनाई करवाना चाहिए और जो फर्श की लेवल होती है उसे कुर्सी लेवल कहते है
इस लेवल में अगर आप डीपीसी करके अंदर पूरी पीसीसी करने की जरुरत होती है जो कुर्सी लेवल होती है जमीं लेवल से 2 या ढाई फिट ऊँची रखना बेहतर है
6. घर में कुर्सी लेवल के कमरों का विस्तार
जब आप के घर की कुर्सी लेवल होने के बाद आप अपने कमरे हॉल रसोई घर बाथरूम सीढिया कहाँ होनी चाहिए वहां मार्क करके काम चालू करवाना होता है
7. कमरों के दरवाजा खिड़की का विवरण
दरवाजो और खिड़कियाँ आप अपने जरुरत और जगह के अनुसार रख सकते है लेकिन हो सके तक दक्षिण दिशा में खिड़की रखने से बचना चाहिए और रसोई घर में तो बिलकुल दक्षिण दिशा में खिड़की नहीं नही रखना चाहिए खिडकियों की साइज़ 4 x 4 या 4 x 5 रखना अच्छा विकल्प है दरवाजा कमरों का तो 3फीट 6 इंच चोड़ाई और ऊंचाई कमसे कम 7 फिट होनी चाहिए
रसोईघर का दरवाजा की चोड़ाई 3 फिट रख सकते है मुख्य दरवाजा की चोड़ाई 4 या 5 फीट होनी चाहिए
बाथरूम और स्टोर के दरवाजा 2 फिट6 इंच होनी चाहिए
आपको दरवाजा खिड़की किसकी बनाना बेहतर है जानने केलिए यहाँ क्लिक करें
8. बाथरूम के वेंट की ऊंचाई
वैसे तो बात रूम के वेंट यानि तावदान कहाँ रखें यह कोई नियम नहीं है लेकिन अगर आप बाथरूम की ऊंचाई कमरों के बराबर ही रखते है तो आपको 7 फिट से ऊपर ही रखना चाहिए जो आपकी सुरक्षा की दृष्टि से अच्छा है और घर में बाथरूम कहा होना चाहिए जानने के लिए यहाँ देखें
9. छत लेवल छत की जानकारी
जब किसी घर के छत लेवल तक कार्य हो जाता है तो सबसे पहले छत कितनी ऊंचाई में होनी चाहिए अक्सर यह सवाल होता रहता है
जानकारी के लिए स्टेंडर्ड साइज़ की बात करें तो 10 फीट 6 इंच होनी चाहिए 11 फिट भी रखते है लेकिन 10 फिट 6 इंच से कम नहीं होना चाहिए
पहली फ्लोर की ऊंचाई तो यह होनी चाहिए दूसरी मंझिल की ऊंचाई 10 फिट रख सकते है उसके अलावा छत के लेवल का विशेष ध्यान देने की जरुरत है और छत में लाइट फिटिंग के जो भी पाइप छत में आते है वह डलवाने की जरुरत होती है और अगर सीलिंग में p.o.p का काम करवाना होतो छत में कम पाइप भी डाल सकते है पी.ओ.पी के बारे में जानकारी चाहिए तो p.o.p or jipsem seat कभीभी छत की भराई कम से कम 6 इंच मोटी छत होनी चाहिए
10. सिंगल फ्लोर है तो एलिवेशन
सिंगल फ्लोर है तो ज्यादा एलिवेशन में खर्च नहीं करना चाहिए और सिंपल ही बनाना चाहिए कभी दूसरी मंजिल का काम करना हो तो ज्यादा तोड़फोड़ की जरुरत नहीं पड़ती है
11. घर में लाइटिंग के पाइप
जब प्लास्टर चालू करने का हो तो उससे पहले लाइटिंग के जो भी पाइप डालना हो वह डलवाना जरुरी होता है नहीं तो फिर बाद में प्लास्टर में कटिंग करके ज्यादा नुकसान करते है इसलिए पलास्टर से पहले पाइप डालना एक अच्छा विकल्प है और लाइटिंग की पूरी प्लानिग बनाकर कर काम करवाना चाहिए कमरे में कितने बल्ब led लाइट हर चीज का बारीकी से जाँच कर के काम करवाना फायदेमंद हो सकता है
12. नल फिटिंग के पाइप
नल फिटिंग का काम बाथरूम रसोईघर वाशरूम सभी की फिटिंग के लिए पहले एक प्लानिग से पाइप डलवाना चाहिए बाथरूम में गीजर या फिर रसोईघर में R.O. के जो भी जरुरत हो वह पाइप पहले ही लगवाना चाहिए इसके अलावा वेस्ट पानी के पाइप भी साथ में ही लगवाना चाहिए जिससे बाद में कम तोड़फोड़ हो
13.प्लास्टर का काम
जब छत के लिए सेटरिंग की जो प्लेटे लगी हो छत भरने के 15 दिन बाद खोलना चाहिए और फिर प्लास्टर करना चाहिए उसमे भी सबसे पहले उल्टी छत का प्लास्टर करना चाहिए और फिर दरवाजा खिड़कियाँ की फ्रेम अगर लकड़ी के चोखट और खिड़कियाँ है तो आपको प्लास्टर से पहले लगवाना चाहिए पत्थर की चोखट है तो बाद में भी लगा सकते है पत्थर की चोखट कहाँ लगाये धोलपुर पत्थर की चोखट के बारे में जानकारी
लकड़ी में चोखट खिड़कियाँ बनाते है या फिर कोनसी चोखट कहाँ लगायें यहाँ पर देखे
14. फर्श का काम
घर को खुबसुरत दिखाने के लिए सबसे जरुरी है तो वह है फर्श का काम फर्श किस तरह की होनी चाहिए आज के समय फर्श के लिए इतनी सामग्री है की क्या लगाये और क्या नहीं लगाये यह तय करना बहुत मुश्किल है इसमें मुख्य मार्बल ( संगमरमर ) ग्रेनाइट टाइल्स इटालियन और वुडेन फ्लोर इसके अलावा p.v.c की भी फ्लोर आती है आपके बजट के अनुसार लगवाना चाहिए कुछ फर्श के मेटेरियल के बारें में जानकारी के लिए
15. प्लास्टर ऑफ़ पेरिस या जिप्सम का काम
मार्बल या टाइल्स का काम होने के बाद प्लास्टर ऑफ़ पेरिस या जिप्सम की सीलिंग का काम करवा सकते है इसमें कई तरह की डिजाईन होती है जो पसंद करके बनवा सकते है यह एक सिर्फ डेकोरेशन का आइटम है घर की मजबूती का इससे कोई लेना देना नहीं है चाहे कर वाएं या नहीं करवाएं यह सिर्फ बजट खराब कर्ण मात्र है
16.कलर पेंट का कार्य
यह कार्य मार्बल और टाइल्स का कम होने के बाद में किया जाता है इस काम के सभी का काम चालू रखना होता है यह एसा कार्य है
इस समय सभी कामगार को एक्टिव रहना होता है लाइटिंग वाला नल वाला दरवाजा खिड़की वाला मार्बल पोलिश और अगर ac का काम है तो यह काम करने वाला
दरवाजा खिड़की लगाने वाला इस तरह से इस समय सभी का होना जरुरी है मतलब यह आपके घर के अंतिम चरण का काम है इस समय बजट का भी ध्यान रखना होता है
disclaimer
इस लेख में कुछ जानकारी जो वास्तु के लिए दी गई है वह जानकारी कथा कहानी और धार्मिक पुस्तको और पुराण से प्राप्त की गई है इन बातो का होम बेसिक सच्चाई की पुष्टि नहीं करता है

